今回はこんな疑問にお答えします。
我が家の体験談をご紹介しますよ!
我が家は、
- リビングの日当たりは大丈夫かな?
- 風通しはいいのかな?
- 地震のときは大丈夫かな?
といった不安を抱えているときに、かえるけんちく相談所のプレミアム動画間取り診断というセカンドオピニオンサービスのことを知りました。
いまはプレミアム動画間取り診断PROという名前に変わり、内容もグレードアップしています。
219,800円(税込241,780円)なのでけっして安い金額ではありませんが、検討する価値は十分にありますよ。
気になる方は、まずは無料の家づくり講座に参加してみましょう。
結論としては、やって良かったなと思っています。
イメージが湧くように、間取り診断動画の一部も公開します。
間取り診断を受けて我が家の間取りがどう変わったか、是非ご覧ください。
また、当サイトから申込いただくと2つの特典が付いてきますよ!!
- Amazonギフト券3000円分プレゼント
- 県民共済住宅OBである僕への質問権(県民共済住宅で建てる方限定)
※1.申し込み後、特典が欲しい旨を運営会社にお伝えください。1週間以内に対応してくれます。
※2.チャットワークグループにご招待し、そこで自由に質問していただけます。
目次
間取り診断とは
まず最初に間取り診断とは、第三者に間取りをチェックしてもらうことです。
第三者というのがポイントです。
間取りは施主(家を建てる人)とハウスメーカーなどの営業担当者(県民共済住宅だと設計士)が打ち合わせをして決めることが多いです。
しかし、施主と営業担当者は、どちらも客観的に間取りを判断できない事情があります。
- いちど気に入った間取りが一番良いと思いこんでしまう
- 間取り図だけで考えてしまい、立体的なイメージを持てない
- 家づくりが初めてなので検討に漏れがある
- 他にもお客さんを抱えているので、早く間取りを確定させたい
家づくりは感情的になりやすいです。
そして気に入った間取りが見つかると、この間取りが最高だ!と思いこんでしまいます。
我が家もそうでした。。。
また、施主は基本的に家づくりが初めてです。
そのため、施主だけでは検討に漏れが出てきます。
たとえば、風通しや耐震性、日当たりなどですね。
そこを営業担当者(設計士)がフォローすべきなのですが、営業担当者は早く間取りを確定させたい事情があります。
他にもたくさんのお客さんを対応しているからです。
間取りの打ち合わせに10回、20回もかけていると他の仕事が回りません。
早く間取りを確定するために、施主が満足してくれていれば、多少気になるところがあっても指摘しないことがあります。
つまり、チェック機能が働かないということです。
施主と営業担当者(設計士)が気づかない・見て見ぬふりしている問題点をチェックしてくれるのが、間取り診断サービスです。
【かえるけんちく相談所】プレミアム動画間取り診断PROの特徴
数ある間取り診断サービスの1つが、かえるけんちく相談所のプレミアム動画間取り診断PROです。
一級建築士の先生が運営している間取り診断サービスで、金額は219,800円(税込241,780円)です。
特徴は、「計画している間取りで、その家族が理想の暮らしができるのか?」という目線で診断してくれることです。
「その家族」の生活の仕方によって、最適な間取りは変わってきます。
住む人がどのような家族なのかを知るために、まず施主がアンケートに答えます。
- 家族構成
- 仕事内容
- 起床時間
- 出勤時間
- 帰宅時間
- 就寝時間
- 趣味
- 家事分担など
建築士の先生がアンケート結果を見て家族像をイメージし、その間取りで暮らして間取りをチェックしてくれます。
「間取りで暮らす」とは、実際に間取りを見ながら、朝起きてから寝るまでの動きを想像することです。
それぞれの家族がどのように動くのか?を家事・収納動線も含めて確認してくれます。
「間取りで暮らす」方法は、無料の家づくり講座でもらえる電子書籍で詳しく紹介されています。他にも2冊プレゼントされるので、まずは家づくり講座に参加してみてください。
「間取りで暮らす」と、いろいろな改善点が見えてくるのでおすすめですよ。我が家も間取りで暮らして間取りをチェックしました。
つづいて、具体的なサービス内容をご紹介します。
7つのサービス
プレミアム動画間取り診断PROでは、7つのサービスを受けられます。
- ✓敷地診断(動画)
- ✓間取り診断(動画)
- ✓最終診断(動画)
- ✓照明コンセント講座
- ✓現場解決サービス
- ✓メール・LINEでの家づくり質問・相談(回数無制限)
- ✓かえる家づくりスクール参加権(13講座、限定メルマガ)
スクール参加権の13講座は、
- 安心でローコストな地盤対策
- 間取りで考える収納計画
- 見積もり・資金計画書の攻略法
- コストダウン20の方法
- 施主のための工事現場マネージメント講座
など盛りだくさんの内容です。これに加えて、限定のメルマガも届きます。
家づくりに関する具体的な内容を学べるので、とても勉強になりました。
あと良かったのは、メール・LINEでの家づくり相談ですね。
我が家は小上がりがあるのですが、「小さな子どもがいる場合、小上がりの窓はどうしたらいいですか?」など、気になることを何度か相談させてもらいました。
専門家に気軽に相談できるのは、とても心強かったです。
3つの動画診断については後ほど詳しく説明します。
他の間取り診断サービスとの比較
かえるけんちく相談所以外にも間取り診断サービスを提供しているところはあります。
探しやすいのはココナラですね。
3,000円ぐらいからサービスを提供している方がいて、高くて2万円ほどというイメージです。
サービスを出している方の案内を見てみると、図面だけをチェックするのではなく、家族構成なども踏まえて間取り診断を行ってくれる方が多いようです。
しっかりと診断してもらえそうですね。
だったら価格が安いココナラの方がいいんじゃないの?と思われるかもしれませんが、我が家は最終的にプレミアム動画間取り診断PROを選びました。
理由は3つあります。
- 13つのタイミングで間取り診断をしてもらえる
- 2動画で説明してもらえるのでわかりやすい
- 3本やメルマガを読んで信頼できると思ったから
ココナラだと間取り診断をしてもらえるのは原則1回です。
追加でお願いするときは別料金がかかります。
ですが実際には、1回で間取りが決まることは少ないです。
ハウスメーカーとの打ち合わせも、納得するまで何回もやりますよね?
また、診断をしてくれる建築士の方が、本やメルマガを出しているということも申し込みのポイントになりました。
なぜかというと、建築士の方の考えを事前に知ることができるからです。
家づくりは何を重視するかによって正解が変わってきます。
自分たちと診断をする方の考えがちがうと、思ったようなアドバイスを受けられない可能性があります。
ですが本やメルマガで建築士の方の考えを知っておけば、そういったミスマッチを防ぐことができます。
具体的には、建築士の方の、
- 耐震の考え方
- 気密を重視していること
- そこで生活する家族になりきって間取りを考えてくれることという点に共感し、この人なら良いアドバイスをしてくれるに違いない、と思い申し込みを決断できました。
間取り診断サービスを選ぶ際の参考にしてください。
つづいて、具体的にどういった診断をしてくれたのかをご紹介します。
事前敷地診断

敷地診断前の間取り図
最初は事前敷地診断です。
このときは、グーグルアースで敷地状況を立体的に把握した上で、建物配置や間取り、窓の位置をアドバイスしてもらえます。
また、季節ごとの日の入り方についてもアドバイスしてくれます。
グーグルアースで家の場所がわかってしまうので動画は載せませんが、次のようなアドバイスを受けました。
- 直下率が低いので、壁を揃えたほうがいい
- 可能ならモノコック工法にする
- モノコック工法ができない場合は制振装置を入れる
- 2階リビングだと夏暑いので、断熱等級4にする
直下率とは・・・
「壁直下率」とは、2階間仕切線(外壁線も含む)の直下に1階の間仕切り線がどれだけ一致しているかの割合を言います。
「柱直下率」とは、2階柱のましたに1階柱がどれだけ一致しているかの割合を言います。
「県民共済住宅 "間取り作りにあたり"」より
要するに、1階と2階がそろっている方が頑丈なので、耐震性が高いということですね。
県民共済住宅では「壁直下率60%以上」と「柱直下率50%以上」が推奨されていますが、数値が高いほうがより安全です。
我が家は直下率が低いという指摘を受けて、かなり間取りを変えました。
ビルトインガレージ風にしていたのをやめて、総二階の家に変更しています。
このおかげで耐震性が上がったのはもちろんのこと、さらに大きな恩恵がありました。
建物面積が4坪弱減ったのです。
県民共済住宅は1坪34.98万円(税込)なので、4坪減ると140万円ほどの減額となります。
これだけで間取り診断の元をとってしまったので、とても大きかったです。
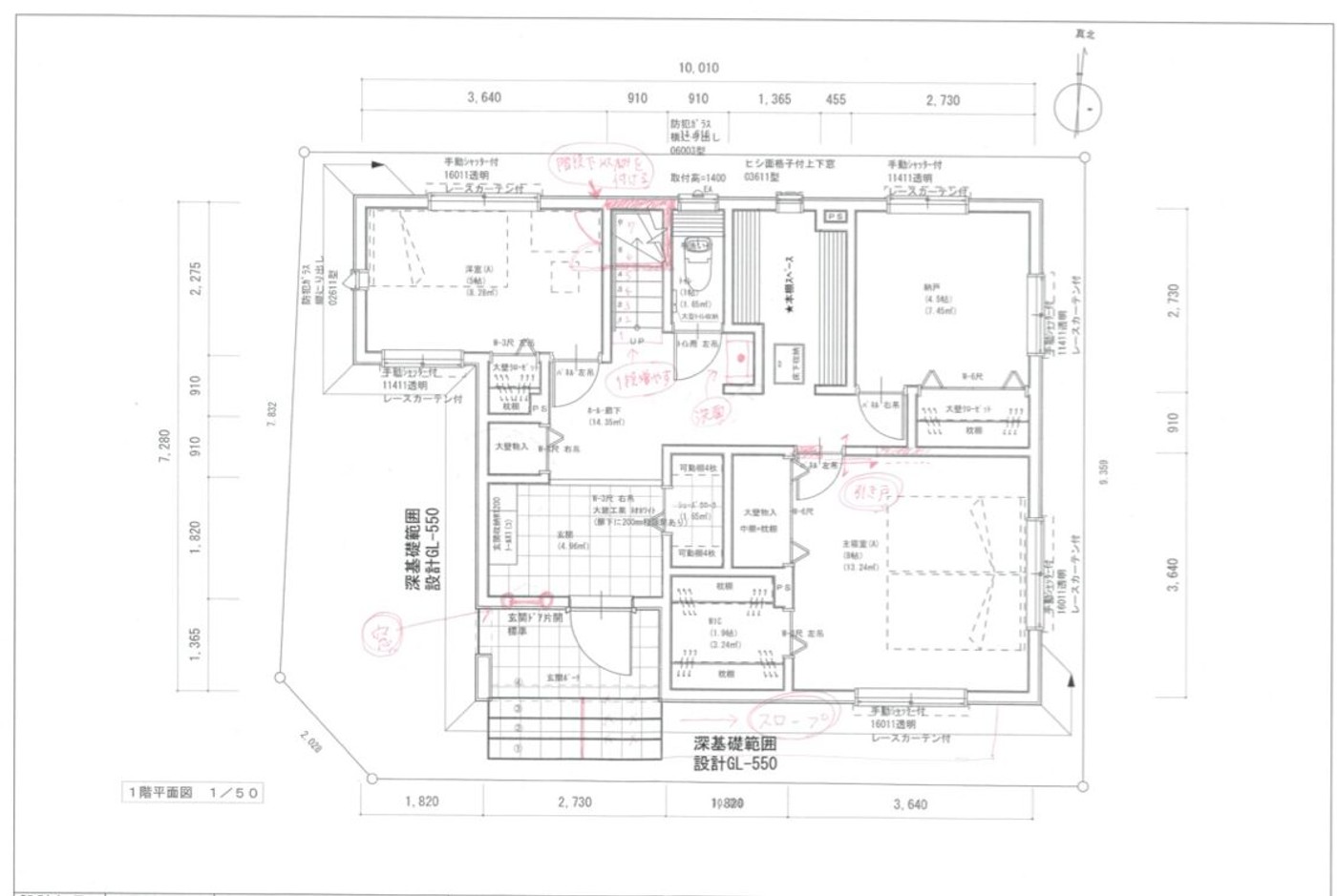
間取り診断

敷地診断後の間取り図(1階)

敷地診断後の間取り図(2階)
次の診断が、メインである間取り診断です。
間取り診断は3部構成となっています。
- 第1部敷地・断熱・構造
- 第2部間取り診断
- 第3部改善提案
第1部 敷地・断熱・構造
第1部の敷地・断熱・構造では、事前敷地診断で確認してもらった内容をもう一度見てもらえます。
耐震性や日当たり、断熱などのチェックですね。
我が家の診断内容を一部ご紹介します。
第1部敷地・断熱・構造(6分9秒)
第2部 間取り診断
第2部の間取り診断診断では、すべての部屋の間取りを細かく見てもらえます。
本当に細かく見てもらえるので、動画の時間がかなり長いです。
我が家の場合は1時間47分でした。
玄関やシューズクローク、リビング、キッチンなどのパース図を作ってくれ、1つひとつ丁寧に検証してもらいました。
たくさんのアドバイスを受けましたが、おもなアドバイスは次のとおりです。
- 玄関が明るくなるように、階段に窓を増やしたほうがいい
- キッチンの場所がよくない
- 小上がりのカウンターの奥行きは45cmあったほうがいい
- 勾配天井は暗くなりがちなので、スポットライトなどで明るくしたほうがいい
他にもいろいろありましたが、この4つのアドバイスが特にありがたかったです。
階段に窓を増やしたり、勾配天井にスポットライトをつけるというアイデアは思いつきませんでした。
キッチンの場所も、アドバイス通り変更して本当によかったです。
間取り診断の内容も一部動画を公開します。
1時間47分の内容を11分にまとめたものですが、内容の雰囲気は伝わるかなと思います
風通しについてもチェックしてもらえました。
第2部間取り診断(11分8秒)
第3部 改善提案
間取り診断の最後は改善提案です。
通常3~5つの改善提案をしてもらえて、我が家は3つの改善提案をしてもらいました。
- 改善提案①:診断時の間取りのブラッシュアップ
- 改善提案②:診断時の間取りをベースに問題点を変更
- 改善提案③:診断時の間取りとはちがった角度からの提案
という感じです。
いろいろ検討した結果、我が家は改善提案②を採用しました。
最終的にはもう少し変更しましたが、ほとんど改善提案②の内容です。
大きくは、
- 1下駄箱とシューズクロークの位置を入れ替え
- 2小上がりとキッチンの位置を入れ替え
- 3バルコニーを広くするという3つを変更しました。
問題点の指摘と改善提案②の内容も動画で公開しますのでご参考にしてください。
第3部改善提案(5分26秒)
間取り診断は以上の3部構成となっており、3つの合計で2時間43分という大ボリュームの内容でした。
かなり充実した内容だと思います。
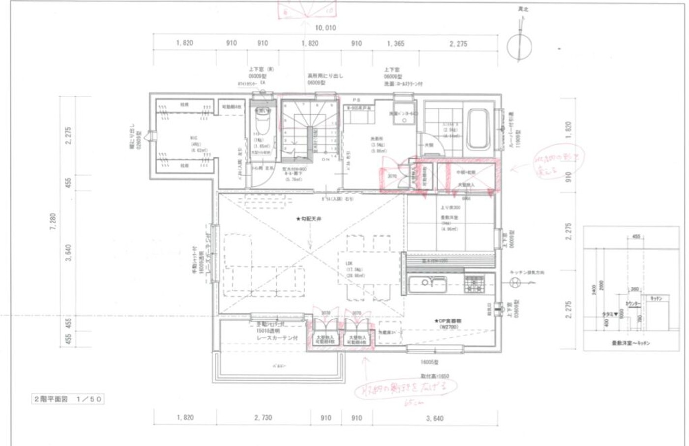
最終診断

最終的な間取り図(1階)

最終的な間取り図(2階)
そして間取りがほぼ確定した段階で行ってもらうのが、最終診断です。
間取りも多少チェックしてもらえますが、メインは窓・ドア・収納・換気・断熱スペックの診断です。
我が家は第一種換気にしたのですが、吸気口の位置で指摘を受けました。
元々の位置だと部屋の手前にありすぎて、奥まで換気ができないということでした。
専門用語でショートサーキットというようです。 せっかくの第一種換気の効果が半減するところだったので、アドバイスをもらえてよかったです。
吸気口は、基本的には部屋の奥に設置するのがいいとアドバイスを受けました。
図解つきで解説してくれているので、詳しくは診断動画をご覧ください。
最終診断(5分22秒)
プレミアム動画間取り診断のデメリット
プレミアム動画間取り診断で少し困ったことが1つありました。
依頼してから診断までにタイムラグがあることです。
納期は7日〜20日となっており混雑状況によって変わりますが、2週間ぐらいが目安になると思います。
待っている間にも間取りのことを考え続けるので、依頼したときの間取りと変わってしまうことがよくあります。
詳細に考えてもらえるので仕方ないですが、タイムラグがあることはご注意ください。
これはプレミアム動画間取り診断だけではなく、他のサービスでも一緒ですね。
まとめ:プレミアム動画間取り診断PROは安い
長々と説明してきましたが、いかがでしたでしょうか。
思った以上のサービスを受けられるんだな、と思われたのではないでしょうか。
もう一度内容を振り返ってみましょう。
- ✓敷地診断(動画)
- ✓間取り診断(動画)
- ✓最終診断(動画)
- ✓照明コンセント講座
- ✓現場解決サービス
- ✓メール・LINEでの家づくり質問・相談(回数無制限)
- ✓かえる家づくりスクール参加権(13講座、限定メルマガ)
動画診断は先ほどご紹介した通り、3つのタイミングで受けられます。
これに加えて、家づくりに関するスクールやインテリアコーディネートアドバイス、メール・LINEでの相談を無制限にすることもできます。
これだけのサービスを受けられたので、199,800円は安いと感じました。 実際に間取りもかなり良くなったので、とても感謝しています。
家づくりで後悔したくないという方は、ぜひプレミアム動画間取り診断PROを検討してみてください。
もちろんいきなり申し込む必要はなく、まずは無料の家づくり講座を受講し、役に立つかどうか判断してみるのがおすすめです。
最後に
新居に引っ越してきて、早いもので9ヶ月が過ぎました。
十分に間取りを検討したつもりでしたが、それでも後悔ポイントはいくつもありました。
- 寝室を開き戸にしておけばよかった
- 階段をもう一段早く始めれば、ベビーゲートをつけやすかった
- キッチン横の窓を上げ下げ窓にしておけばよかった
- 部屋の中心に空気清浄機用のコンセントをつけておけばよかった、などなどですが、どれも我慢できるぐらいの後悔でおさまったのは、かえるけんちく相談所のプレミアム動画間取り診断PROを受けたからだと思っています。
100%満足することはできませんでしたが、90%満足する家は建てられました。
これから何十年も住む家で、日々後悔しながら暮らすのはとても辛いと思います。
そんな方が少しでも減るようにと思い、今回の記事を書きました。
間取り診断はまだまだ浸透していないサービスですが、近い将来はみんなが当たり前に使うサービスになると思います。
家づくりで後悔しないために、ぜひ検討してみてください。
それでは、家づくりを楽しんでください。





